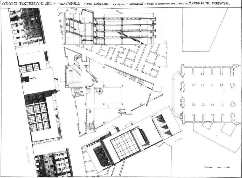
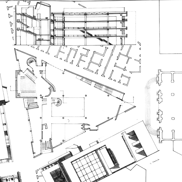
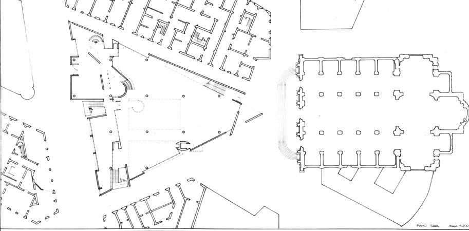
PROGETTAZIONE ARCHITETTONICA III, Prof. Valter Vannelli _ progetti di studenti, A.A. 1992_93


   Roma / contesto di Via Giulia / S. Giovanni dei Fiorentini / Via Paola


   Alessio Barilari
   1993
   elaborati di progetto

continua

continua