PROGETTAZIONE ARCHITETTONICA III, Prof. Valter Vannelli _ progetti di studenti, AA 1998_99


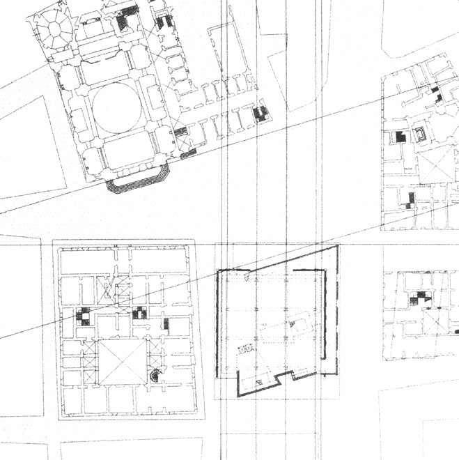
   Roma / contesto di S.Carlo ai Catinari


   Alessia Rossi
   1999
   progetto / elaborati

continua
....