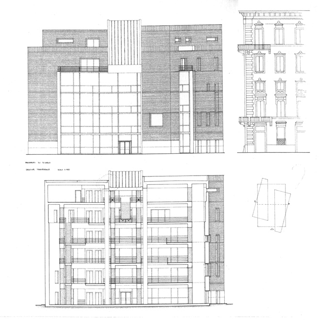
PROGETTAZIONE ARCHITETTONICA III, Prof. Valter Vannelli _ progetti di studenti, AA 1998_99


   Roma / contesto di S.Carlo ai Catinari


   Anna Sganzerla
   1999
   progetto / elaborati

continua

....